Schafflund:
Moderne Doppelhaushälfte in ruhiger Lage von Schafflund
Objekt-Nr.: 2026-370

Frontansicht

Rückansicht

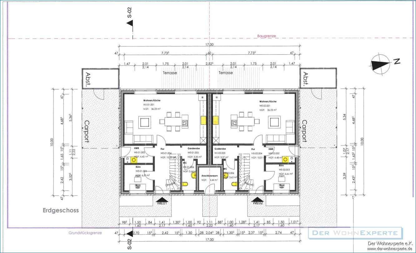
Terrassen

Wohnküche

Küche

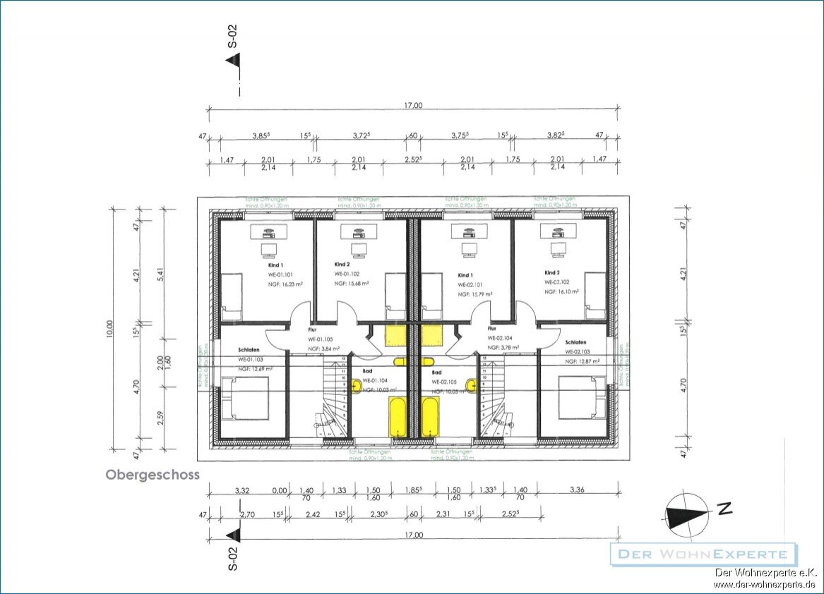
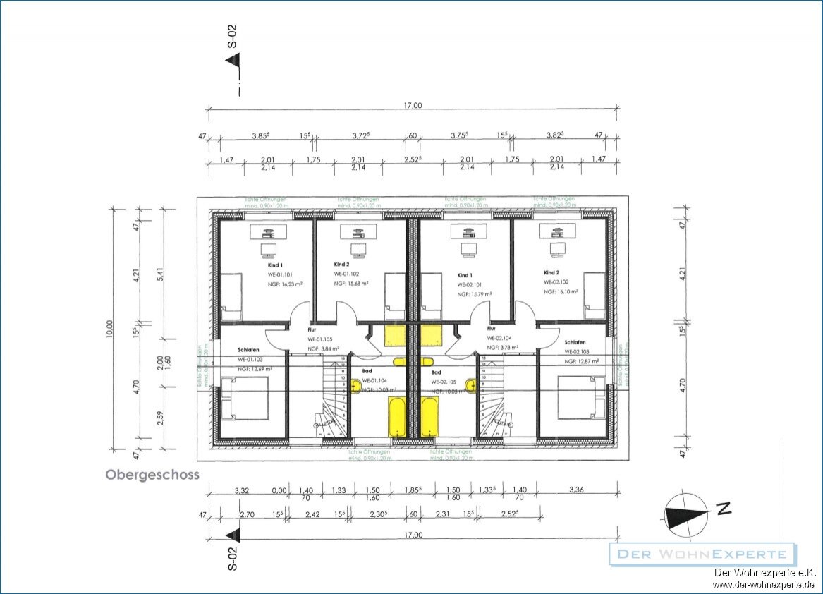
Flur

Badezimmer

Kinderzimmer

Büro

Gäste-WC

Halbes Zimmer

Hauswirtschaftsraum

Grundriss EG

Grundriss OG














Preis:
350.000 €
Wohnfläche ca.:
122,90 m²
Grundstück ca.:
453 m²
Zimmeranzahl:
4,5
Diese gepflegte Doppelhaushälfte aus dem Baujahr 2017 bietet ein modernes und zugleich familienfreundliches Zuhause in Schafflund. Auf ca. 123 m² Wohnfläche, verteilt auf zwei Etagen, überzeugt das Haus mit einer durchdachten Raumaufteilung und angenehmem Wohnkomfort.
Insgesamt stehen Ihnen 4,5 Zimmer zur Verfügung, darunter drei gut nutzbare Schlafzimmer sowie ein weiteres Zimmer, das sich flexibel als Büro, Gäste- oder Hobbybereich eignet. Ein Badezimmer ergänzt das Raumangebot funktional und komfortabel. Die vorhandene Terrasse erweitert den Wohnbereich nach draußen und lädt zu entspannten Stunden im Freien ein – ideal für Familien, Paare oder alle, die Wert auf einen privaten Außenbereich legen.
Das ca. 453 m² große Grundstück bietet ausreichend Platz für Freizeit, Garten und individuelle Gestaltungsmöglichkeiten. Die gepflegte Gesamtanmutung sowie das junge Baujahr machen diese Immobilie zu einer attraktiven Wahl für Käufer, die ein bezugsnahes Haus in ruhiger Lage suchen.
Haustyp: Doppelhaushälfte
Etagenanzahl: 2
Provision: 3,57 % inkl. MwSt.
Bad: Dusche, Wanne, Fenster
Anzahl Schlafzimmer: 3
Anzahl Badezimmer: 1
Terrasse: 1
Keller: nein
vermietet: ja
Anzahl der Parkflächen: 1
Anzahl der Parkflächen: 1 x Carport
Baujahr: 2017
Zustand: gepflegt
Befeuerungsart: Elektro
Energieausweistyp: Bedarfsausweis - gültig bis 27.07.2026
Energieeffizienz-Klasse: A+
Baujahr laut Energieausweis: 2016
Das könnte Ihnen auch gefallen
Moderne Doppelhaushälfte in Schafflund

















